Алгоритм согласования альбома "Архитектурные решения. Первый этаж" (АР1.1)

1. Проверяем наличие dwg в полученных материалах от АР. При отсутствии - запрашиваем.
2. В АР находим Кладочный план 1-го этажа или Маркировочный план 1-го этажа. Открываем полученный dwg файл.
3. На сервере проектов в Исходящие открываем файлы dwg в папке гггг-мм-дд Задание к АР, отверстия на 1 этаже, v....Выделяем все, зажимаем Сtrl+Shift+C и ставим базовую точку в пересечении осей (подложка должна быть заблокирована).
4. В файле от АР жмем Сtrl+Shift+V с указанием пересечения осей.
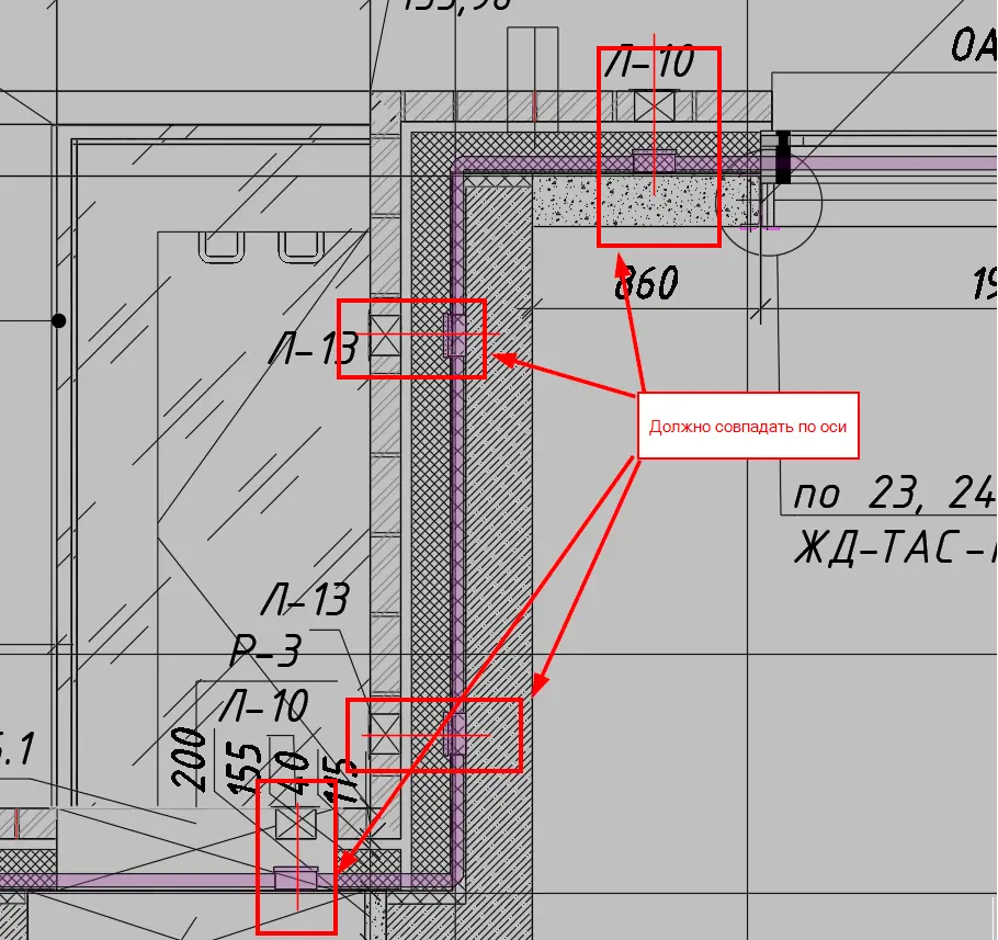
5. Проверяем точность наложения отверстий и гильз.
6. Проверяем значения ведомости отверстий
7. Проверяем размещение лючков:
7.1 Способ 1 (если лючки показаны на плане):
- на сервере проектов в Исходящие открываем файлы dwg в папке гггг-мм-дд Задание к АР, пояс безопасности, v...;
- накладываем на план АР и сравниваем расположение коробок и лючков.
7.2 Способ 2 (если лючки не показаны на плане):
- открываем модель СС;
- на виде 100_План 1 этажа (+0.000) переходим на разрезы, размещенные параллельно фасадам;
- проверяем размещение лючков и протяжных коробок.
8. При положительном результате проверки ответным письмом согласовываем альбом.

(пример письма)
Здравствуйте. 
В части СС/АиД согласовано.


При отрицательном результате проверки - выдаем замечания.

(пример письма)
Здравствуйте. 
В части СС/АиД не согласовано.
1. Лист 2 - указать марки отверстий
скриншот
2. Лист 12 - размещение люков не соответствует заданию от 2023.06.26
скриншот