Стадия П. Алгоритм формированию задания на шкафы СС


1. Все шкафы размещаем на высоте 1500мм от уровня чистового пола (далее у.ч.п), если не указано иное.
2. 1 этаж
2.1. В помещении консьержа:
- EE_IEK_Щит_ЩМП У2:800х650х250мм (ЩМП-4-0 У2) на рабочем наборе (далее РН) 10_СОВ, BS_Дисциплина - СОВ, BS_Имя нагрузки - ШСОВ;
- EE_IEK_Щит_ЩМП У2:1000х650х285мм (ЩМП-5-0 У2) на РН 10_СПА, BS_Дисциплина - СПА, BS_Маркировка - ШПС;
- EE_IEK_Щит_ЩМП У2:1000х650х285мм (ЩМП-5-0 У2) на РН 10_АСДКиУ, BS_Дисциплина - АСУД, BS_Имя нагрузки - ШАСУД.

2.2. В помещении охраны:
- EE_IEK_Щит_ЩМП У2:650х500х220мм (ЩМП-3-0 У2) на РН 10_СКУД, BS_Дисциплина - СКУД, BS_Имя нагрузки - ШСАВ;
- EE_IEK_Щит_ЩМП У2:1000х650х285мм (ЩМП-5-0 У2) на РН 10_СПА, BS_Дисциплина - СПА, BS_Имя нагрузки - ШПС;
- EE_Тромбон_Шкаф телекоммуникационный настенный:12U_600x600 (ТШ-126060Ч1) на РН 10_СПА, BS_Дисциплина - СПА, BS_Имя нагрузки - ШСОУЭ.
Все оборудование стараемся разместить рядом с подъемом из подземной части.

3. Подземный этаж.
3.1. В узловом помещении связи:
- 2 шт. EE_ССД_Шкаф телекоммуникационный напольный:42U_800x1000 (ШТ-НП-42U-800-1000-ПП) на РН 10_ВСС, BS_Дисциплина - ВСС, BS_Имя нагрузки - ШТ.


3.2. В помещении СС:
- EE_IEK_Щит_ЩМП У2:1000х650х285мм (ЩМП-5-0 У2) на РН 10_АСДКиУ, BS_Дисциплина - АСУД, BS_Имя нагрузки - ШАСУД;
- EE_IEK_Щит_ЩМП У2:800х650х285мм (ЩМП-4-0 У2) на РН 10_АСКУЭ, BS_Дисциплина - АСКУЭ, Марка и EL_Имя нагрузки - ШАСКУВТ;
- EE_IEK_Щит_ЩМП У2:800х650х285мм (ЩМП-4-0 У2) на РН 10_АСКУЭ, BS_Дисциплина - АИИСКУЭ, Марка и EL_Имя нагрузки - ШАИИСКУЭ;
- EE_Щит с монтажной платой:400х400x126) на РН 10_АСКУЭ, EL_Имя нагрузки - ШАСУПР;
- EE_ReDGen_Шкаф телекоммуникационный напольный:42U_600x800 на РН 10_СОТ, EL_Имя нагрузки - ШВТСС;
- EE_IEK_Щит_ЩМП У2:1000х650х285мм (ЩМП-5-0 У2) на РН 10_СПА, BS_Дисциплина - СПА, BS_Имя нагрузки - ШПС;
- EE_Тромбон_Шкаф телекоммуникационный настенный:12U_600x600 (ТШ-126060Ч1) на РН 10_СПА, BS_Дисциплина - СПА, BS_Имя нагрузки - ШСОУЭ.

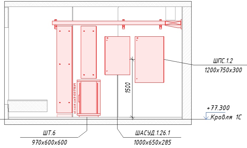
4. Кровля.
3.1. В помещении СС:
- EE_ССД_Шкаф телекоммуникационный напольный:18U_600x600 (ШТ-НП-18U-600-600-М) на РН 10_ВСС, BS_Дисциплина - ВСС, рядом с подъемом/опуском, BS_Маркировка - ШТ;
- EE_IEK_Щит_ЩМП У2:1000х650х285мм (ЩМП-5-0 У2) на РН 10_АСДКиУ, BS_Дисциплина - АСУД, BS_Маркировка - ШАСУД;
- 2шт. EE_IEK_Щит_ЩМП У2:1200х750х300мм (ЩМП-6-0 У2) на РН 10_СПА, BS_Дисциплина - СПА, BS_Маркировка - ШПС;
- EE_Щит с монтажной платой:450х600x200 на РН 10_ВСС, BS_Дисциплина - ВСС, BS_Маркировка - ШУОО, только в помещении СС на самой высокой секции;
- 3шт. EE_Щит с монтажной платой:1000х650х300 на РН 10_АК, BS_Дисциплина - АК, BS_Маркировка - ШУ. Если типоразмера нет в семействе - создаем сами. Два шкафа разместить один над другим.


5. Запускаем склейку параметров при помощи плагина ModPlus Параметризация используя стратегию ПИК_Склейка параметров (шкафы).