Стадия АПР. Алгоритм формирования задание к АР на ниши и зашивки

Данный алгоритм применять только после изучения следующей информации:
- Типовой проект (спросить у куратора);
- Чек-лист технических решений СС. Реновация;
- Рекомендации от МФР.

1. Типовой этаж.
1.1. Копируем с детализацией вид 100_План ... этажа (+...).
1.2. Применяем шаблон вида СС_Задание к АР_Ниши/перегородки. В шаблоне вида в вкладке Связанные файлы ставим галки у моделей АР и КР на Полутона и Подложка.
1.3. Переименовываем вид (пример наименования 209_План 6 этажа (+17.100)_Задание к АР_Ниши/зашивки).
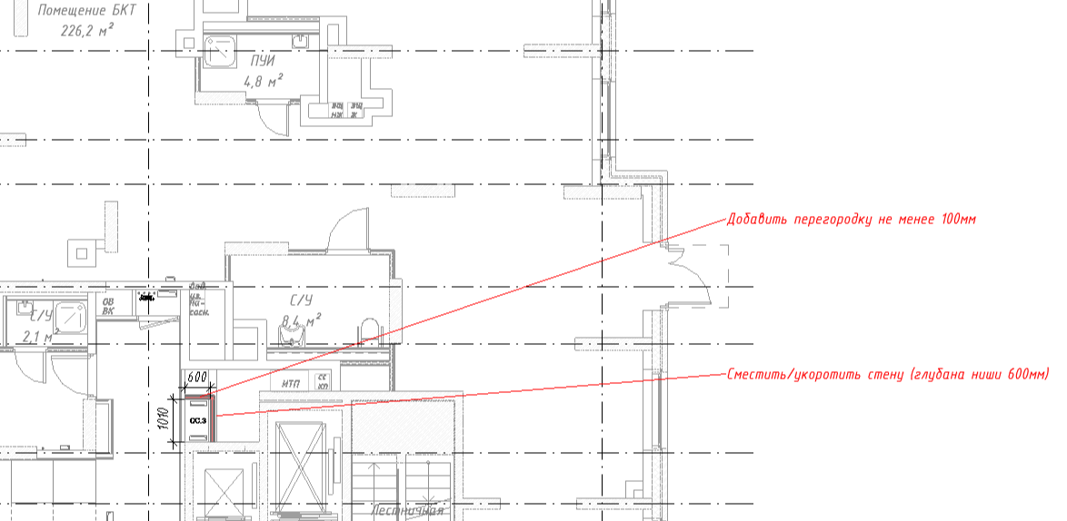
1.4. Если есть перегородки (выделяются автоматически красным), то ставим аннотационный текст Добавить перегородку не менее 100мм.
1.5. Выгружаем dwg файлы (пример наименования файла 0401-П-ЖД-1.3-СС-КК_Задание к АР (типовой этаж)) в папку исходящие (пример наименования папки 2024.01.18 (Задание к АР, ниши, зашивки и перегородки, v.1)).

2. 1 этаж.
2.1. Копируем с детализацией вид 100_План 1 этажа (+0.000).
2.2. Применяем шаблон вида СС_Задание к АР_Ниши/перегородки.
2.3. Переименовываем вид (пример наименования 209_План 1 этажа (+0.000)_Задание к АР_Ниши/зашивки).
2.4. Если есть перегородки (выделяются автоматически красным), то ставим аннотационный текст Добавить перегородку не менее 100мм и др.

2.5. Повторяем п.1.5. (пример наименования 0401-П-ЖД-1.3-СС-КК_Задание к АР (1 этаж)).

3. Отправляем файлы заданием к АР. В адресаты ставим ГС АР и ведущих специалистов (если таковы известны). В копию ставим ГС КР, ГС ЭОМ, ГС ВК, ГС ОВ, ГС СС, ГС АиД, куратора и ведущих специалистов (если таковы известны).

(пример письма)
Тема письма: 0401 Одесская 4-6 (зона 1.3). Задание к АР от СС. Ниши, зашивки, перегородки
Здравствуйте.
Выдается задание на стадию АПР.
0401 Одесская 4-6 (зона 1.3). Задание к АР от СС. Ниши, зашивки, перегородки. Версия 1.
Название видов в Revit:
Ссылка на Revit файл: RSN://vpp-rs19-ren10.main.picompany.ru/0401_Рен_Одесская, влд. 4-6 (Зона 1.3)/Корпус 1.3/55_СС/0401-П-ЖД-1.3-СС-о.rvt
Прошу взять в работу. Все замечания и комментарии оставлять в теме данного письма.
Вложения: dwg файлы.